Display Homes Des Moines
Iowa
Custom-Built, Move-In Ready Homes
Manufacturer's Warranties
Free Estimates in 2-7 Days

Request Lorem Epsom
Hero Request Form
Thank you for contacting us.
We will get back to you as soon as possible.
Please try again later.
Discover Your Dream Home Today in Des Moines!
Searching for the ideal home in Des Moines, IA? Flummerfelt Homes & Storage offers an impressive selection of display homes. As Iowa's largest family-owned dealer, we provide custom-built, move-in ready homes tailored to your specific requirements. Come visit our beautiful display homes! Walk-ins are welcome, though we encourage you to book an appointment for the best experience.
Contact us today.
Highland
Cavco (Goshen)
Cavco (Dorchester)
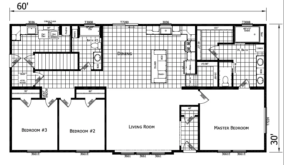
Kingsbrook 563AS - Modular - 1800 SQFT
Size: 32'x60'
Included:
- 3 bedrooms & 2 bathrooms
- 9' ceiling height
- 2-panel white hollow core interior doors
- Standard vinyl in kitchen, utility & bathrooms
- 25oz carpet throughout
- Craftsman style front door
- Brushed nickel fixtures throughout
- White cabinets throughout
- Stainless steel appliances - gas range
- Laminate countertops throughout
- Soft close drawers in kitchen & doors throughout
- Linen cabinet in master bath
- Ceramic tile walk-in shower in master bath
- Recessed LED lighting throughout
- Pendant lights above island
- R21 walls & R50 ceiling insulation
- Transom windows in master bedroom & bath 2


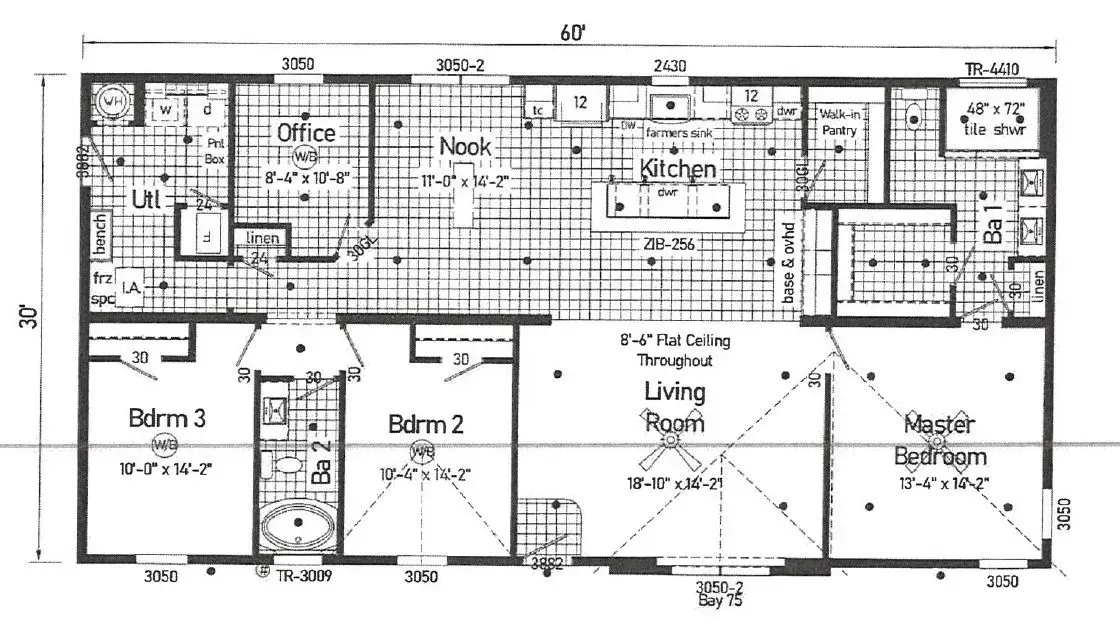
Size: 32'x60'
Included:
- 3 bedrooms & 2 bathrooms
- 8'6" ceilings throughout
- 5/12 roof pitch
- White 6-panel hollow core interior doors
- White trim throughout
- Transoms in bathrooms
- Standard vinyl throughout
- 25oz carpet in bedrooms
- Brushed nickel fixtures throughout
- Rustic elm flat-panel cabinets throughout
- Deep blue kitchen island & bath vanities
- Stainless steel appliances - gas range
- Stainless steel farmers kitchen sink
- 4'x6' walk-in shower in master bath
- Walk-in closet in master
- Soft-close drawers throughout
- R50 ceiling, R22 floor & R21 wall insulation
- Fans in living room & master
- Fan preps in bedrooms 2 & 3


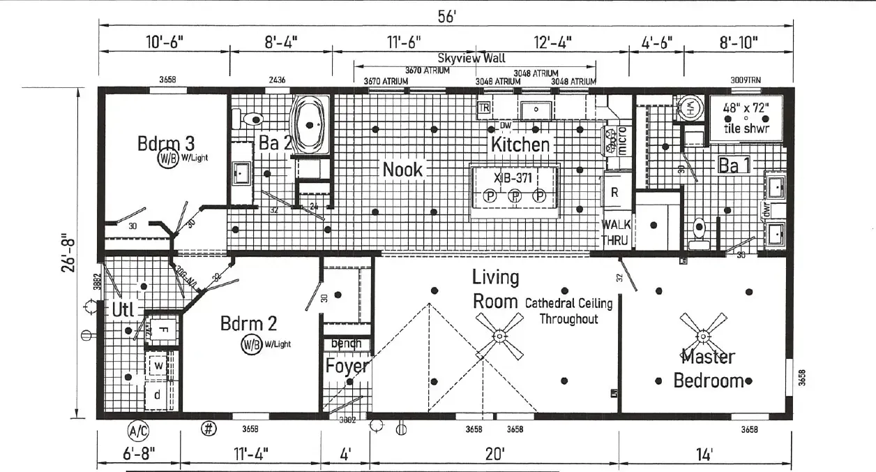
Limited 2 - Manufactured - 1800 SQFT
Size: 28'x56'
Included:
- 3 bedrooms & 2 bathrooms
- Cathedral ceilings throughout
- Fixed roof w/ twin peak dormer
- 2-panel white hollow core interior doors
- Standard vinyl in kitchen, utility & bathrooms
- 25oz carpet throughout
- Black 1/4 lite style front door
- Black 1/2 lite style rear door
- Black fixtures throughout
- Shadow grey & white cabinets throughout
- Stainless steel appliances - gas range
- Laminate countertops throughout
- Soft close drawers & doors throughout
- Ceramic tile walk-in shower in master bath
- Walk-in closets in master bed, bed 2 & 3
- Recessed LED lighting throughout
- Black pendant lights above island
- R21 walls & R50 ceiling insulation
- Transom windows in master bedroom & bath 2
- Ceiling fans in living room & master bedroom
- Ceiling fan prep in bedroom 2 & 3


1W1020 - Manufactured - 1140 SQFT
Size: 16'x76'
Included:
- 3 bedrooms & 2 bathrooms
- Cathedral ceilings throughout & fixed roof
- White 6-panel hollow core interior doors
- White trim throughout
- Transoms in bathrooms
- Standard vinyl throughout
- 25oz carpet in bedrooms
- Black fixtures throughout
- Grey flat-panel cabinets throughout
- Stainless steel appliances - gas range
- Stainless steel double bowl kitchen sink
- 2 pendant lights above island
- Toilet topper in bath 2
- 54" fiberglass shower in master bath
- Walk-in closet in master
- Soft-close drawers throughout
- R38 ceiling, R22 floor & R19 wall insulation
- Fans in living room & master
- Fan preps in bedrooms 2 & 3


1W1045 - Manufactured - 1140 SQFT
*COMING SOON*
Size: 16'x76'
Included:
- 3 bedrooms & 2 bathrooms
- 8'6" ceilings & fixed roof
- Painted white 2-panel hollow core interior doors
- White trim throughout
- Standard vinyl throughout
- 25oz carpet in 2 bedrooms
- Brushed nickel fixtures throughout
- Latte oak cabinets throughout
- Stainless steel appliances - gas range
- Stainless steel double bowl kitchen sink w/ coil faucet
- Toilet topper in bath 2
- 54" fiberglass shower in master bath
- Walk-in closet in master
- Soft-close doors & drawers throughout
- R38 ceiling, R22 floor & R19 wall insulation
- Fans in living room, master bedroom & bedroom 2
- Fan prep in bedrooms 3


3W1414 - Manufactured - 1512 SQFT
Why Choose Flummerfelt Homes & Storage
Flummerfelt Homes & Storage is the go-to choice for display homes in Des Moines. Here's what makes us unique:
- Over 40 years in the industry
- Local ownership and operation
- Iowa's largest family-owned dealer
- Custom-built homes ready for move-in
- Modern communities with desirable amenities
- Options to fit your needs and budget
- Available financing solutions
- Rent-to-own options for sheds and community homes
- Potential turnkey projects for easy move-ins
- Free estimates within 2-7 days
- Manufacturer's warranties on materials
- Full liability insurance for your protection
Choosing Flummerfelt Homes & Storage means partnering with a company dedicated to your satisfaction and long-term happiness.
Contact Us
Interested in exploring our Des Moines display homes? The Flummerfelt Homes & Storage team is here to help. We'll show you our available options, explain the benefits of our homes, and work with you to find the best fit for your needs and budget.
Start your Des Moines homeownership journey today.
Contact us and let's bring your dream home to life!
- Bullet text
- Bullet text
- Bullet text
- Bullet text
- Bullet text
- Bullet text
- Bullet text
- Bullet text
- Bullet text
- Bullet text
Title or Question
Describe the item or answer the question so that site visitors who are interested get more information. You can emphasize this text with bullets, italics or bold, and add links.Title or Question
Describe the item or answer the question so that site visitors who are interested get more information. You can emphasize this text with bullets, italics or bold, and add links.Title or Question
Describe the item or answer the question so that site visitors who are interested get more information. You can emphasize this text with bullets, italics or bold, and add links.
Title or Question
Describe the item or answer the question so that site visitors who are interested get more information. You can emphasize this text with bullets, italics or bold, and add links.Title or Question
Describe the item or answer the question so that site visitors who are interested get more information. You can emphasize this text with bullets, italics or bold, and add links.Title or Question
Describe the item or answer the question so that site visitors who are interested get more information. You can emphasize this text with bullets, italics or bold, and add links.
Gallery Heading H2
Reviews
Home Sweet Home Is Within Reach
Flummerfelt Homes & Storage is Iowa’s largest family-owned dealer. Financing is available, as well as rent-to-own options for sheds and community homes. Stop by and explore our wide selection today!
Call us for a free estimate





